Meadows

+1
TapClick to View Photos
Availability:
Community Features
Pet Policies
- Pets Allowed: Yes
- Pet Restrictions: See Community
Additional Details
- Off-Street Parking
- Playground
- Recreational Facilities
- Street Width: Average
- Street Type: Paved
- Age Restrictions: No
- Vacant Sites: 5+
- Year Built: 1965
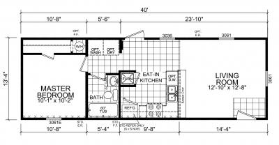
- Number of Sites: 330
- Multisection Homes: 40%
- Homes w/ Peaked Roofs: 45%
- Homes w/ Lap Siding: 50%
- Distance to water: 6.5 Miles
Amenities
- Basketball Court
Other
- Community Manager Name: Catrina Sizemore
- On-Site Sales Office
- Contact Name: Catrina Sizemore
Fill out the form below to send a message to this community and request more information on this park or schedule a tour.
By clicking "Send Message" you agree to receive email from this seller or sales agent, which you can opt out of at any time. This form is intended for legitimate inquiries from individuals who are considering Meadows. Using this messaging system for any other purposes, such as solicitation or filing complaints, is prohibited by the MHVillage.com Terms of Use. Thank you for your cooperation.
Contact Information
On Site Sales OfficeContact: Catrina Sizemore
Meadows welcomes any questions or comments you may have.
Click a button on this page to contact Meadows today!9 homes in Meadows
Sorted by Best Match








