2 Pine Grove Road, Southington, CT 06489
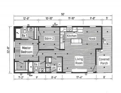
About this Home
~~ 55+ ACTIVE ADULT COMMUNITY with Year Round Amenities plus Inground Seasonal Pool & Public Gardens ~~
ARRIVING SOON: Modern Ranch Living Meets Premium Craftsmanship!
Be the first to call thi...
Fill out the form below to send a message to the seller and request more information on this home, schedule a tour, or make an offer.
By clicking "Send Message" you agree to receive email from this seller or sales agent, which you can opt out of at any time. This form is intended for legitimate inquiries from individuals who are considering buying or renting this home. Using this messaging system for any other purposes, such as solicitation or filing complaints, is prohibited by the MHVillage.com Terms of Use. Thank you for your cooperation.
Listed By:

Additional Home Details
Community Information





Insurance Options
This home may qualify for reduced home insurance rates. Get a quote today!
| MOBILE HOMES NEAR ME | |
|---|---|
| City | Homes |
| Southington | 6 |
| East Hartford | 4 |
| Killingworth | 3 |
| Uncasville | 3 |
| Storrs | 2 |
| MOBILE HOME PARKS NEAR ME | |
|---|---|
| Park Name | Homes |
| Cedar Springs | 4 |
| Rivermead Pointe North / South | 3 |
| Beechwood | 2 |
| Three Gardens | 1 |
| Forest Hill | 1 |


