49315, Michigan Mobile & Manufactured Homes for Sale or Rent - 54 Homes
Quick Search
Search Area
Sorted by Best Match
Currently Viewing 22 of 54 Results

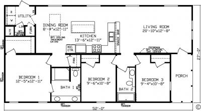
54 New and Used Mobile Homes near 49315
There are currently 54 new and used mobile homes listed for your search on MHVillage for sale or rent in the 49315 area.
With MHVillage, its easy to stay up to date with the latest mobile home listings in the 49315 area. When browsing homes, you can view features, photos, find open houses, community information and more. You can also narrow your search to show specific types of homes using the sort and filter options available. Choose from price, year, beds, baths, home size, and several others. Find your dream home in the 49315 area using the tools above.
Cities with Manufactured Homes For Sale Near Me





















